'대규모 반도체 클러스터, 용인의 위대한 변화의 시작'
GREAT
ONE
용인 양지 푸르지오
용인 양지 푸르지오
용인 푸르지오 원클러스터파크
잔여세대 선착순 동·호수 지정 계약 진행 중
용인 양지 푸르지오 방문을 진심으로 환영합니다.
현재 모든 정당계약이 성황리에 마감되었으며,
미계약 잔여 세대에 한해 즉시 선착순 계약이 가능합니다.
- 진행상태: 선착순 동호지정 계약중
- 계약조건: 계약금5%(1차 계약금 500만원)
- 상담문의: 홈페이지 접수 및 대표번호 문의
원하시는 동·호수를 선점하시려면 지금 바로 접수해 주세요.
모델하우스 방문예약 접수하기사업개요
OVERVIEW
사업명
용인 양지 푸르지오
대지위치
용인시 처인구 양지면 양지리 산97-12번지 일원
세대타입
80㎡, 84㎡, 134㎡
세대수
공동주택 710세대
건축규모
지하2층~지상최고 29층, 6개동
입주예정
2028년 12월 예정
입지환경
ENVIRONMENT
PREMIUM 5
용인 양지 푸르지오만이 선사하는 5가지 특별함
반도체 클러스터
직주근접 프리미엄
삼성전자, SK하이닉스 배후 주거지
용인 반도체 벨트의 중심축
푸르지오
브랜드 자부심
대한민국 주거 문화를 리드하는
푸르지오만의 고품격 특화설계
사통팔달
쾌속 교통망
양지IC 및 제2경부고속도로(예정)
서울과 수도권을 잇는 빠른 발걸음
양지 주거벨트의
새로운 중심
대규모 주거 타운 형성 예정
미래가치가 기대되는 양지2지구
단지를 품은
청정 숲세권
근린공원과 맞닿은 쾌적한 환경
도심 속 힐링을 선사하는 파크라이프
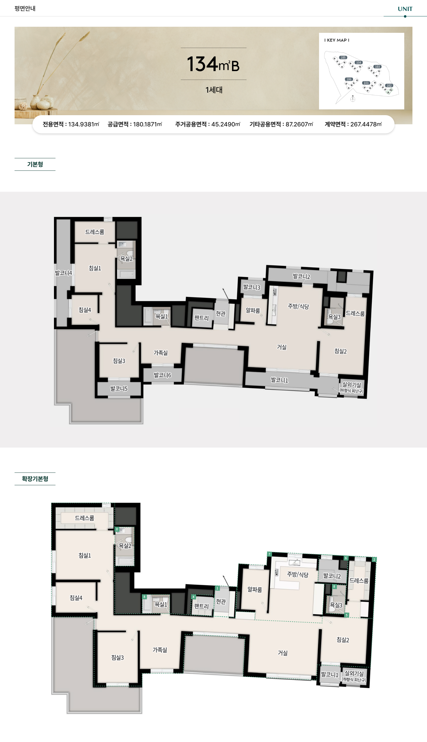
세대안내
UNIT PLAN









용인 양지 푸르지오, 반도체 국가산단 배후 주거지 낙점... '프리미엄 6선' 분석
삼성전자·SK하이닉스 '반도체 벨트' 중심 입지 확보
이동·남사읍 시스템반도체 국가산단과 용인 반도체 클러스터를 잇는 직주근접의 핵심입니다. 3,724세대 대단지의 압도적 규모를 자랑합니다.
동용인IC 승인 확정, 강남 및 판교 접근성 대폭 개선
세종~포천 고속도로 동용인IC(가칭)와 국도 45호선 확장 사업을 통해 서울과 인근 도시로의 이동 시간이 획기적으로 단축됩니다.
삼성물산 리조트부문 협업 '블루밍 아일랜드' 조경 특화
국내 최고 수준의 에버랜드 조경 노하우가 단지 안으로 들어옵니다. 수변 공간과 어우러진 대규모 힐링 가든이 조성됩니다.
계약금 500만원 정액제 도입... 초기 자금 부담 'Zero' 도전
수요자들의 자금 계획을 돕기 위해 파격적인 금융 혜택을 제공합니다. 1차 계약금 정액제로 내 집 마련의 문턱을 낮췄습니다.
전 세대 남향 위주 4Bay 판상형... 일조권·통풍 극대화
푸르지오만의 혁신 설계가 적용되어 공간 효율성이 뛰어납니다. 대형 드레스룸과 팬트리 구성으로 수납 고민을 해결했습니다.
전매 제한 6개월 및 실거주 의무 無... 비규제 지역 혜택
수도권 비규제 지역으로서 당첨 후 6개월이면 분양권 전매가 가능합니다. 다주택자도 청약이 가능한 열린 기회를 제공합니다.
모델하우스 방문예약 및 잔여세대 문의
지금 바로 전문 상담사를 통해 정확한 분양가와 잔여 호실 정보를 확인하세요.
모델하우스 상담 예약하기